Schulzentrum Wehrli
Investitionen Nr.: 130002/130004/130007/130010 – Projekt Schoderbach gemäss Botschaft Verpflichtungskredit
Nach der Zustimmung durch den Souverän im Juni 2024 konnte das Projekt «Schoderbach» bis zur Baueingabe weiterentwickelt werden. Die Einreichung der Pläne erfolgte im August desselben Jahres. Parallel zur Baubewilligungsphase wurden bereits die Vorbereitungen für die Submissionsphase getroffen und weitere Optimierungsmöglichkeiten geprüft. Vorbehaltlich der Baufreigabe ist geplant, dass ab Frühsommer 2025 mit den Rückbauarbeiten an den Gruppenräumen sowie der Verlegung des Spielplatzes beim heilpädagogischen Zentrum begonnen wird.

Bauvisierung

Entstehender Innenhof

Neubau und unterirdische Doppelturnhalle

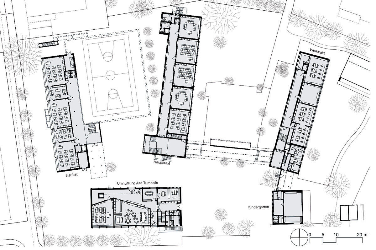
Grundriss Erdgeschoss

Umnutzung Turnhalle
Hort Bachweg Dach- und Fassadensanierung
Investition Nr. 130009: Investition 2024 CHF 28'402 -> Projektabschluss 2025
Um den Werterhalt des Gebäudes langfristig zu sichern, wurden am Hort Bachweg umfassende Sanierungsarbeiten durchgeführt. Dazu zählen die statische Ertüchtigung des Flachdaches sowie Arbeiten an der Fassade und der restlichen Dachflächen.
Gleichzeitig wird auf dem Anbau eine Photovoltaikanlage zur Eigenstromerzeugung installiert, um die Energieeffizienz zu verbessern. Die Sanierung erfolgt in zwei Bauetappen und soll bis zum Jahr 2025 abgeschlossen sein.

Fassade alt -> Sanierung Abschluss 2025

Dachdetail alt -> Abschluss 2025